Esquisse

Architectes :
Emilie Froelich 
Luis Miguel Ruiz Aviles

Programme : 
Restructuration d’une maison familiale en milieu rural

Lieu :
Hammeau de Mesones, Albacete, Espagne

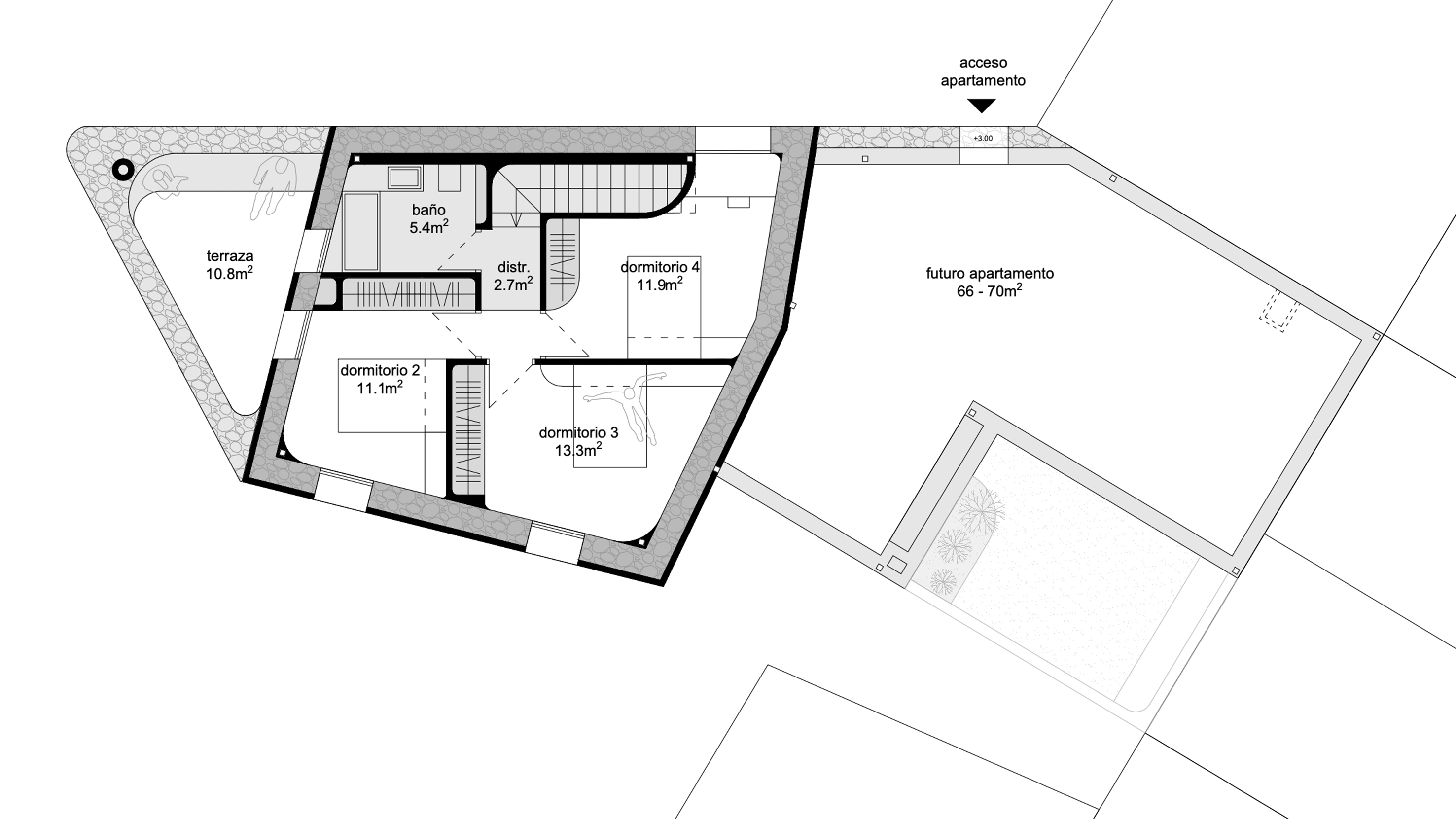
La maison de Rosa est une résidence principale familiale au sein d’un hammeau de montagne dans le sud-est de la province d’Albacete en Espagne. Y ont vécu et façonné l’espace différentes générations avec un mode de vie proche de l’autosuffisance. Les récoltes étaient transformées au sein de la demeure : huile d’olive, conserves de fruits et légumes, “matanza”... Si ces traditions perdurent, la distribution existante de la bâtisse ne s’adapte plus aux usages contemporains des espaces de convivialité : aucune pièce ne propose de dimensions suffisante pour se retrouver en groupe ; la hauteur du rez-de-chaussée, aussi, se limite à 2,15 m sous plafond.

Le projet de restructuration cherche à mettre en valeur la matérialité de ce patrimoine familial. En effet, les murs sont construits en “toba”, pierre calcaire légère et poreuse aux qualités isolantes naturelles. Au contraire, le plancher est totalement démoli et la distribution obsolète repensée.

Une extension dans l’actuelle cour vient créer un espace de nuit adapté à la perte de mobilité et un espace de stockage des denrées alimentaires au rez-de-chaussée. À l’étage, où un accès indépendant est possible par le changement de niveau de la ruelle, un appartement indépendant sera créé pour la location saisonnière. 






TÆNU

Travaux d’Architecture
Entre Nature et Urbe

2024

mentions légales



Emilie Froelich est architecte diplômée de l’ENSAS [Ecole Nationale Supérieure d’Architecture de Strasbourg] en 2017 et habilitée à la maîtrise d’oeuvre en nom propre depuis 2019. En 2020, elle est invitée comme architecte résidente à Courtrai [Belgique] où ses recherches se portent sur les anciennes “îles” qui entourent la ville.

emilie.froelich[at]gmail.com