Esquisse :
Emilie Froelich [TAENU]

Programme : 
Plateforme logistique
et cuisines industrielles

Lieu :

Strasbourg, Bas-Rhin, France

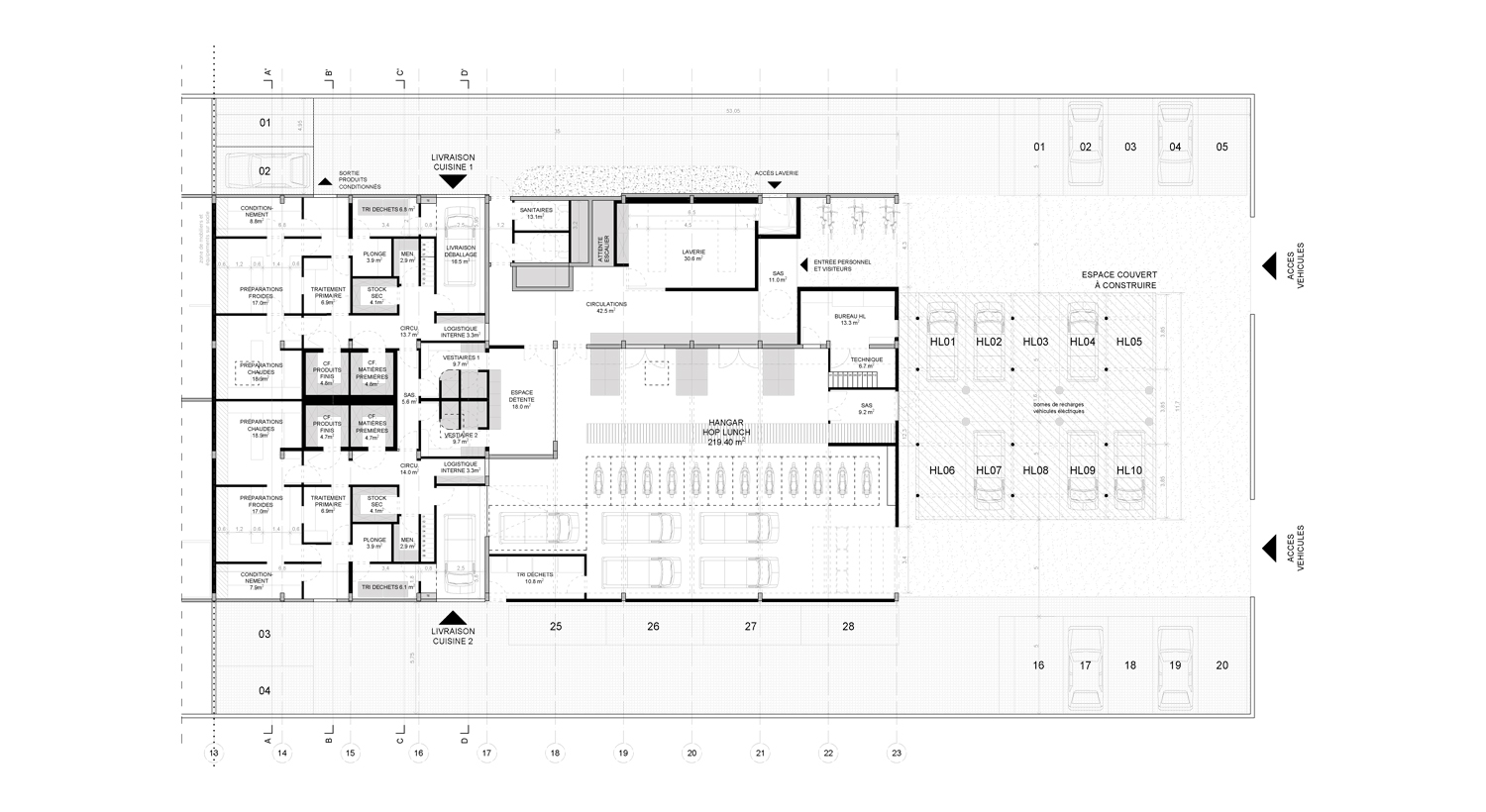
Le projet “rue de l’Ardèche” consiste en la restructuration d’une partie d’un local industriel aujourd’hui accessible depuis la rue Livio dans la zone industrielle de la Plaine des Bouchers. Le bâtiment fait l’objet d’une division, de sorte que les nouvelles activités s’ouvriront sur la rue de l’Ardèche. Une ancienne extension, qui présente une toiture amiantée, est démantellée pour laisser place aux nombreuses places de parking nécessaires à la plateforme logistique.

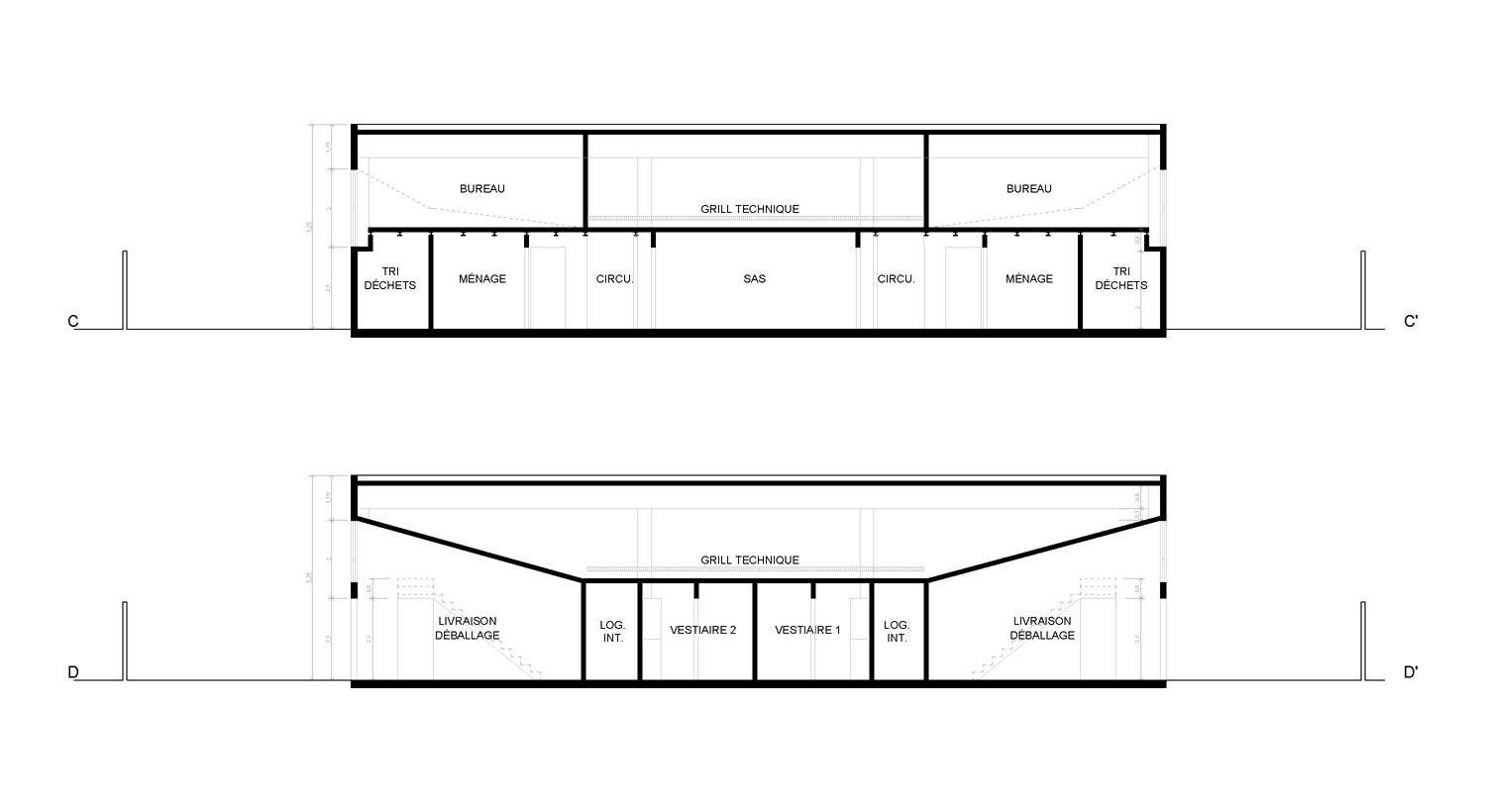
Deux larges cuisines industrielles, modulables, s’intègrent en miroir. Les vestiaires et certaines installations sont mutualisées mais chaque cuisine dispose de ses propres espaces de livraison et de préparation de plats. Le travail des faux plafonds des “laboratoires” permet de réduire le volume d’air à traiter mais de laisser la lumière naturelle rayonner au plus profond du bâtiment en conservant les façades existantes. 






TÆNU

Travaux d’Architecture
Entre Nature et Urbe

2024

mentions légales



Emilie Froelich est architecte diplômée de l’ENSAS [Ecole Nationale Supérieure d’Architecture de Strasbourg] en 2017 et habilitée à la maîtrise d’oeuvre en nom propre depuis 2019. En 2020, elle est invitée comme architecte résidente à Courtrai [Belgique] où ses recherches se portent sur les anciennes “îles” qui entourent la ville.

emilie.froelich[at]gmail.com