Etudes en cours : 
Emilie Froelich [TAENU]
Programme : 
Restructuration d’une maison alsacienne à pans de bois

Lieu :

Dachstein, Bas-Rhin, France

48°56’08.3”N
7°53’26.8”E

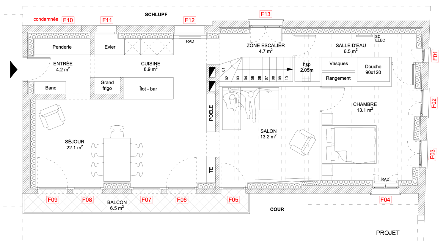
La maison de ville, située rue du Couvent dans la commune de Dachstein, est composée d'une succession de constructions avec des hauteurs et systèmes constructifs différents. Les bâtiments qui la composent s’ouvrent sur une longue cour et sont entourés de traditionnels “schlupf” : espaces étroit entre deux maisons. La première construction, sur rue, présente une façade typique des maisons alsaciennes à pans de bois. Une extension des années 1980 vient compléter cette première bâtisse pour constituer l’habitation. Deux corps de granges, enfin, se situent en fond de cour. 

La demande initiale du client portait sur la reprise du plancher de la maison à pan de bois pour obtenir une pièce de vie avec une hauteur sous plafond plus adaptée. Toutefois, dans l'optique de respecter la structure initiale de la maison alsacienne et de limiter les coûts des travaux, le projet propose une redistribution des espaces pour ramener une grande pièce de vie dans l'extension moderne et une occupation de la zone avec faible hauteur par des pièces acceptant cette condition (salon-cinéma, chambre, salle d'eau).

Aussi, afin de flouter les limites entre la grange et l'habitation, le projet de l'espace d'entrée se fait dans cet entre-deux. Cette stratégie a vocation à intégrer les travaux de mise en sécurité de la grange au projet afin que le client puisse y réaliser des activités semi-extérieures (sport, dîners, bricolage...). Les mises en oeuvre de matériaux, aussi, sont choisis avec des artisans locaux experts de l’éco-rénovation en Alsace afin de proposer le projet le plus respectueux possible vis-à-vis des qualités patrimoniales de l’existant. 






TÆNU

Travaux d’Architecture
Entre Nature et Urbe

2024

mentions légales



Emilie Froelich est architecte diplômée de l’ENSAS [Ecole Nationale Supérieure d’Architecture de Strasbourg] en 2017 et habilitée à la maîtrise d’oeuvre en nom propre depuis 2019. En 2020, elle est invitée comme architecte résidente à Courtrai [Belgique] où ses recherches se portent sur les anciennes “îles” qui entourent la ville.

emilie.froelich[at]gmail.com